Modena Villaggio ATTICO DI PRESTIGIO CON TERRAZZO
Italiano
760.000 €
250 m2
3 Camere
2 Bagni
2 Box
3° piano - con ascensore
D

Modena Villaggio ATTICO DI PRESTIGIO CON TERRAZZO

In vendita • Modena (Villaggio Zeta) - Via Costellazioni
VP2794 Modena Villaggio Zeta
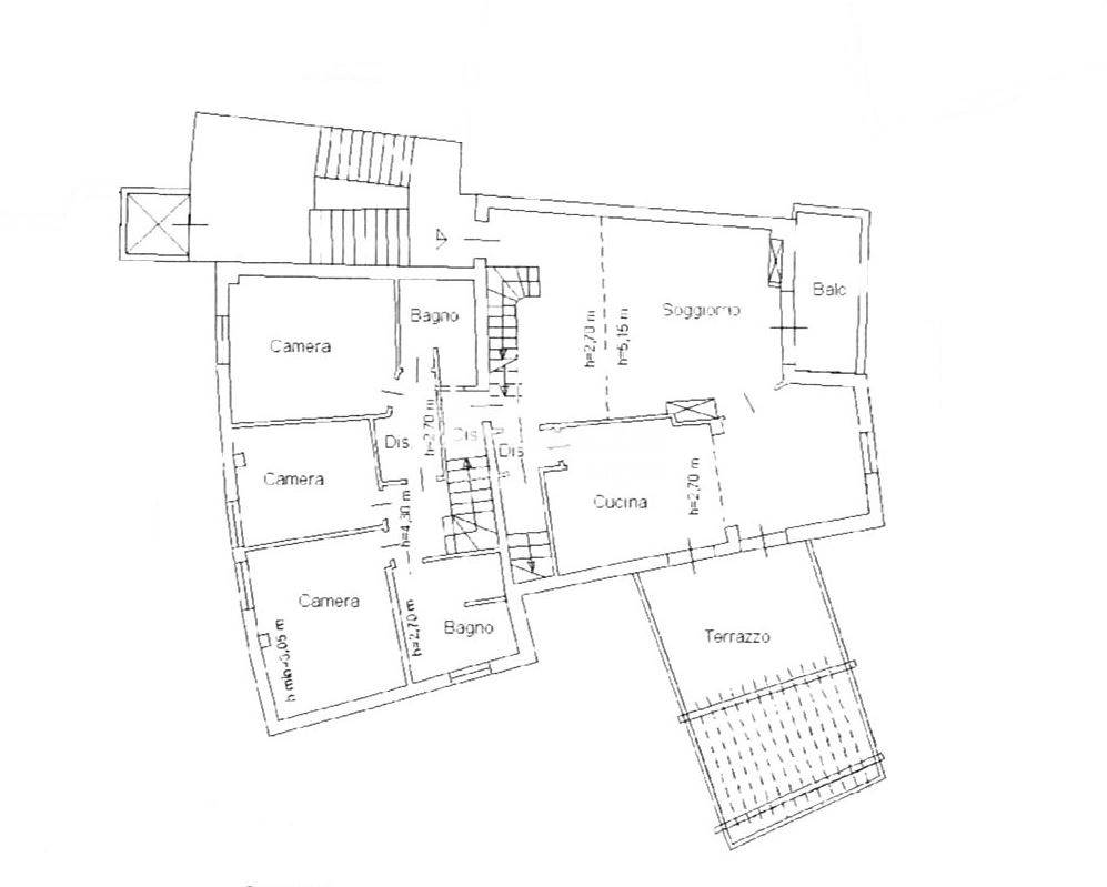
ATTICO di prestigio in condominio signorile con TERRAZZO e DOPPIO GARAGE.
Ingresso, salone con camino, sala da pranzo, cucina abitabile, terrazzo, tre camere, due bagni, soppalco con studio-camera, lavanderia (possibile terzo bagno), ripostiglio, balcone. Molto luminoso e libero su tutti i 4 lati con totale privacy e perfetta esposizione.
Ottime condizioni, riscaldamento autonomo, aria condizionata in tutti gli ambienti, soffitto a travi a vista e pavimenti pregiati in legno massello in quasi tutti gli ambienti, tapparelle motorizzate, impianto di allarme, cassaforte, allacciamento open fibra.
Doppio garage finestrato con soppalco calpestabile.
Classe: D.
Caratteristiche principali Vedi tutte
Codice
VD4858
Città
Modena (Villaggio Zeta)
Categoria
Attico
Prezzo
760.000 €
Locali
8
Camere
3
Bagni
2
Mq
250
Box
2
Balconi
1
Terrazzi
1
Piano
Terzo
Classe energetica
D
Stato Immobile
Buono
Grado
Signorile
Tipo Soggiorno
Salone
Tipo Cucina
Abitabile
Riscaldamento
Autonomo
Pavim. Giorno
Parquet
Pavim. Notte
Parquet
Pavim. Cucina
Ceramica
Pavim. Bagno
Ceramica

Accessori: Aria Condizionata, Ascensore, Camino, Doppi Vetri, Lavanderia, Porta Blindata, Video Citofono

Chiudi tutte
Planimetrie
Photo 1
Photo 2
Photo 3
Mappa
Via Costellazioni , Modena (MO)
Agenzia di riferimento
Immobiliare Medaglie d'Oro
Immobiliare Medaglie d'Oro
Piazza Manzoni, 4/1
41124 Modena MO
Rif. Annuncio VD4858
Richiedi informazioni
Invia
Condividi su
Condividi su Facebook Condividi su Twitter Condividi su Linkedin Condividi su Whatsapp
Cookie preference